Curve unit

Special order!!!

Our luxury modular residence can be made for special ordering.

Comes with the same standard and optional inclusions compared to the standard modular 1-set modular unit, the curve unit retains the same flexibility with extra style.

For more information, please contact us at admin@aussieportablespaces.com.au

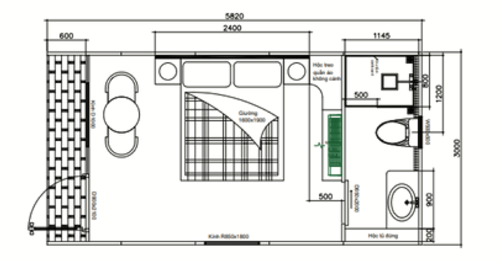
3 x 5.8 x 3.5

17.5m2

1

1

Floor plan


Floor

The basic floor uses thick, high-strength, moisture-resistant, fire-resistant Cemboard, especially againsts permanent termites.
The floor is tiled by wood plastic composite imitation wood plastic or industrial wood flooring with diverse designs and high quality.

Standard

Wood plastic composite
Wood plastic composite
Wood plastic composite
MGO

Optional

Tile
Tile
Vinyl
Vinyl

Wall

With many affordable options as well as customer's requirements:

  • EPS sandwich panel
  • 4-layer high grade bearing wall
  • Exterior wall: Metal siding/cement siding
  • Inner wall: MDF/plastic imitation wood/pine wood

Standard

EPS sandwich panel
EPS sandwich panel

Optional

Bamboo charcoal fiber
Bamboo charcoal fiber
Star line metal sliding
Metal sliding
Metal sliding
Metal sliding

Ceiling

Multiple options to suit your taste:

  • Soundproofing ceiling panel
  • Melamine coated MDF ceiling
  • Metal siding

Standard

Soundproof ceiling panel

Optional

Melamine coated
MDF ceiling
Metal sliding

Specification

Dimensions 3000 x 5800 x 3500mm
Area 17.5m2
Module 1
Room 1
Bathroom 1
Door 1
Windows 2
Installation Assemble module