3 set modular unit

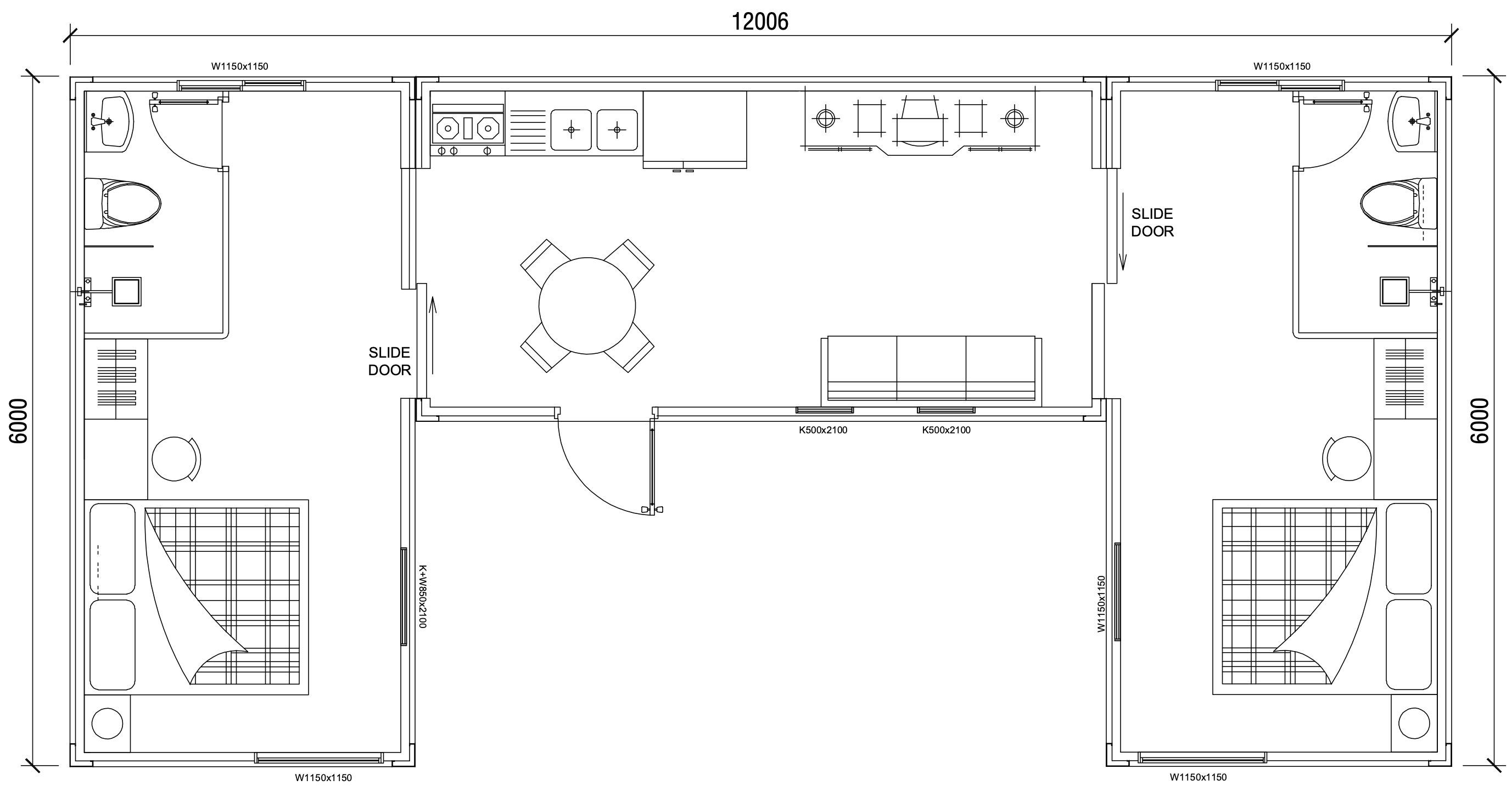
2-bedroom, 2-bathroom U-shaped Adjoining Rooms

Three modular sets connected in a U-shaped configuration, with bathroom pods in both bedrooms. The 3-set design offers ample space for relaxation and entertainment.

Its U-shape layout ensures privacy and functionality.

Whether you are unwinding in the spacious living areas, preparing a meal in the kitchen, or enjoying the tranquility of your bedroom suite, this modular, portable unit blends luxury with practicality.

6 x 12 x 3

54m2

3

2

Floor plan


Specification

Dimensions 6000 x 12006 x 3000mm
Area 54m2
Module 3
Room 3
Bathroom 2
Door 3
Windows 8
Installation Assemble module
Assemble components

Standard and optional inclusions

For more information about our materials? Click here.


1 set modular unit

  • 3 x 6 x 3
  • 18m2
  • 1
  • 1

Love this but want more?

Have a look at our other designs.

2 set modular unit

  • 6 x 9 x 3
  • 36m2
  • 2
  • 1